Objektbeschreibung
Dieses Einfamilienhaus mit insgesamt 4 Wohneinheiten und ca. 230 m² Wohnfläche auf einem ca. 762 m² großen Erbbaurechtsgrundstück befindet sich in einem zentral gelegenen Wohngebiet. Das Zentrum von Büsum erreichen Sie in ca. 10 Gehminuten, somit auch die beliebte Alleestraße mit diversen Restaurants, Cafés und Einkaufsmöglichkeiten. Im Anschluss hieran erreichen Sie den Museumshafen, das modernisierte Schwimmbad "Meerzeit" und den Büsumer Grünstrand.
Zudem befindet sich die neu erbaute Grundschule in der Nähe und die weiterführende Schule in ca. 10 Gehminuten.
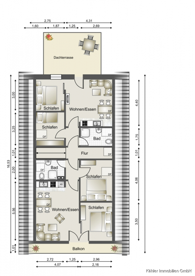
Das 1983 erbaute Einfamilienhaus bietet im Erdgeschoss ca. 143,42 m² Wohnfläche verteilt auf zwei Wohneinheiten. Ein gemeinsamer Eingangsbereich mit Flur und Treppe in das Dachgeschoss verbindet alle Wohneinheiten.
Die linke 2,5-Zimmer-Wohnung verfügt über ein geräumiges Tageslichtduschbad mit ebenerdiger Walk-in-Dusche, ein gemütliches Wohnzimmer mit offener Küchenzeile mit Essbereich und Zugang zu einer großen Terrasse, ein großes Schlafzimmer und ein kleines Schlafzimmer. Der Flur mit Platz für eine Garderobe verbindet alle Räume.
Die rechte 4-Zimmer-Wohnung verfügt über ein modernes Tageslichtbad ebenfalls mit ebenerdiger Walk-in-Dusche und besonderer Beleuchtung im Boden und in den Wänden. Zudem bietet die Wohnung einen großzügigen Wohnbereich mit Kamin, Zugang zu einer großen Holzterrasse mit Blick in den Garten und zu einem Schlafzimmer. Über eine geräumige Küche mit Tresen gelangen Sie in ein Esszimmer mit Zugang zu einer Terrasse und zu einem weiteren ca. 20 m² großen Schlafzimmer. Ein Heizungsraum bietet zudem einen Waschmaschinenanschluss.
Das Dachgeschoss bietet zwei weitere Wohneinheiten mit insgesamt ca. 85,8 m² Wohnfläche . Die linke Wohneinheit ist derzeit fest vermietet und erwirtschaftet derzeit Mieteinnahmen von ca. 440 € KM monatlich. Die Wohnung besteht aus einem Wohn/Esszimmer mit Küchenzeile, einem Tageslichtduschbad und zwei Schlafzimmern. Das Wohnzimmer bietet zudem einen Zugang zu einer sonnigen Dachterrasse.
Da der Mieter zum Anfang 2026 ausziehen wird, wird das Haus unvermietet übergeben.
Die zweite Wohneinheit, derzeit als Ferienwohnung vermietet, verfügt über ein modernes Tageslichtduschbad, einen Wohn-/Küchenbereich mit Zugang zu einer Loggia mit Blick in den Garten und zwei geräumige Schlafzimmer.
Ein Raum unter der Treppe bietet eine Waschmaschine, die für alle Parteien zugänglich ist.
Zu dem Haus gehört eine Garage und 3 weitere Kfz-Stellplätze. Die Terrassen mit Gartenanteil sind zudem komplett eingezäunt.
Das Mobiliar und Inventar sind im Kaufpreis enthalten.
Die Laufzeit des Erbbaurechtsvertrags endet am 19.09.2074. Der Erbbauzins beläuft sich auf €1.120,14 im Jahr.
Für genauere Informationen und die Abstimmung eines Besichtigungstermins stehen wir Ihnen gerne zur Verfügung.








































