Objektbeschreibung
In ruhiger und naturnaher Lage im begehrten Ortsteil Böhl von St. Peter-Ording präsentiert sich dieses stilvolle Reetdachhaus als hochwertiges Refugium an der Nordseeküste. Eingebettet in ein ca. 790 m² großes Grundstück genießen Sie hier ein hohes Maß an Privatsphäre, Weite und Erholung. Die unmittelbare Nähe zu Dünen und Küstenlandschaft verleiht der Immobilie ein besonderes Wohngefühl, das Naturverbundenheit und Lebensqualität auf harmonische Weise vereint.
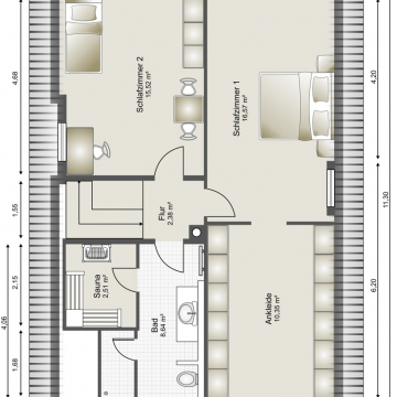
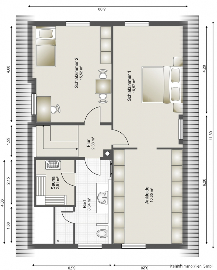
Das im Jahr 2014 errichtete Einfamilienhaus überzeugt mit einer Wohnfläche von ca. 141 m² sowie einer durchdachten und großzügigen Raumgestaltung. Die Architektur greift den traditionellen nordfriesischen Baustil mit Reetdach auf und verbindet diesen mit moderner Bauqualität und zeitgemäßer Energieeffizienz. Großzügige Fensterflächen sorgen für helle, freundliche Räume und schaffen eine angenehme Verbindung zwischen Innen- und Außenbereich.
Herzstück des Hauses ist der offen gestaltete Wohn- und Essbereich, der durch seine Weite und Helligkeit besticht. Die fließenden Übergänge innerhalb des Erdgeschosses ermöglichen ein kommunikatives und zugleich komfortables Wohnen. Der Blick in den Garten unterstreicht die naturnahe Atmosphäre und verleiht dem gesamten Wohnbereich eine besondere Großzügigkeit. Hier entstehen Orte für gemeinsames Beisammensein ebenso wie für ruhige, entspannte Stunden. Ergänzt wird das hochwertige Wohnambiente durch zahlreiche maßgefertigte und sehr hochwertige Einbaumöbel, die sich harmonisch in die Architektur des Hauses einfügen und zusätzlichen Komfort sowie Stauraum bieten.
Ein besonderes Ausstattungsmerkmal ist die hauseigene Sauna, die wohltuende Rückzugsmöglichkeiten im eigenen Zuhause bietet. Nach einem langen Spaziergang entlang der Nordseeküste genießen Sie hier entspannte Momente in privater Atmosphäre.
Auch in technischer Hinsicht erfüllt die Immobilie moderne Ansprüche. Die Beheizung erfolgt über eine effiziente Erdwärmeanlage. Ergänzt wird dieses nachhaltige Energiekonzept durch eine Lüftungsanlage mit Wärmerückgewinnung, die für ein angenehmes Raumklima sorgt und gleichzeitig zur Energieeinsparung beiträgt. In Kombination mit der Energieeffizienzklasse A+ bietet das Haus somit ein durchdachtes und zukunftsorientiertes Energiekonzept, das dauerhaft niedrige Betriebskosten ermöglicht. Ein vorhandener Glasfaseranschluss gewährleistet zudem eine zukunftssichere und leistungsstarke Internetversorgung. Umweltbewusstsein und Wohnkomfort gehen hier Hand in Hand.
Der Außenbereich bietet vielfältige Nutzungsmöglichkeiten. Ob sonnige Stunden auf der Terrasse, Gartenaktivitäten oder einfach der Blick ins Grüne – das Grundstück schafft einen geschützten Rahmen für Erholung und Freizeit. Ein großzügiger Doppelcarport mit Abstellraum bietet komfortable Stellmöglichkeiten für zwei Fahrzeuge sowie Fahrräder und fügt sich harmonisch in das Gesamtbild des Grundstücks ein. Die ruhige Lage im Ortsteil Böhl zählt zu den gefragtesten Wohnlagen von St. Peter-Ording und verbindet naturnahes Wohnen mit einer guten Erreichbarkeit von Einkaufsmöglichkeiten, Gastronomie und weiterer Infrastruktur.
Dieses Reetdachhaus vereint traditionellen Küstencharakter mit moderner Bauqualität und energieeffizienter Technik. Eine Immobilie für Käufer, die Wert auf Ruhe, Nachhaltigkeit und ein stilvolles Zuhause in einer der schönsten Lagen Norddeutschlands legen.

























