Objektbeschreibung
Diese modernisierte 2-Zimmer-Wohnung mit Balkon befindet sich im Dachgeschoss einer im Jahr 1983 erbauten Wohnanlage und bietet eine Wohn- und Nutzfläche von ca. 46,27 m². Die angegebene Fläche umfasst sowohl den Balkon als auch den praktischen Abstellraum im Keller des Gebäudes. Die Wohnung befindet sich auf Eigenland und wurde bisher sehr lukrativ als Ferienwohnung vermietet. Sie besticht durch ihre attraktive Lage in unmittelbarer Nähe zum Büsumer Hafen und bietet einen herrlichen Blick auf das Meer. Das beliebte Zentrum von Büsum ist in nur etwa drei Minuten fußläufig erreichbar. Hier finden Sie eine Vielzahl an Geschäften, Restaurants und Cafés, während auch der Hauptstrand und das Schwimmbad bequem zu Fuß erreicht werden können.
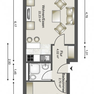
Über den Flur betreten Sie den Eingangsbereich der Wohnung. Der Flur verfügt über einen geräumigen Wandschrank und verbindet alle Räume miteinander. Das helle Wohn- und Esszimmer überzeugt durch seine freundliche Atmosphäre und eine moderne, offene Einbauküche, die harmonisch in den Raum integriert ist. Hier finden Sie ausreichend Platz für einen gemütlichen Wohnbereich sowie einen Essplatz. Die bodentiefe Fensterfront sorgt für viel Tageslicht und bietet direkten Zugang zum großzügigen Balkon, von dem aus Sie den Blick in Richtung Hafen und Meer genießen können. Der Balkon ist mit einer elektrischen Markise mit Fernbedienung ausgestattet, die an sonnigen Tagen angenehmen Schatten spendet. Für zusätzlichen Komfort verfügen sowohl die Balkontür als auch die Fenster zur Meerseite über elektrische Rollläden.
Ein modernisiertes Duschbad sowie ein helles Schlafzimmer runden das Raumangebot ab.
Zur Wohnung gehören zudem ein Abstellraum im Keller und ein Stellplatz auf dem Parkdeck der Tiefgarage. Im Keller befindet sich außerdem ein großer gemeinschaftlicher Wasch- und Trockenraum mit Waschmaschine und Trockner, die über Münzautomaten betrieben werden. Auf dem Grundstück steht zusätzlich ein kleiner Fahrradschuppen zur Verfügung.
Die Wohnanlage wurde regelmäßig modernisiert: Im Jahr 2021 wurde die Fahrstuhlanlage vollständig erneuert, und ebenfalls 2021 erfolgte der Glasfaseranschluss für schnelles WLAN. Das monatliche Hausgeld beträgt derzeit 301,00 €. Aufgrund der zentralen Lage, der Nähe zur Alleestraße und des reizvollen Meerblicks eignet sich die Wohnung sowohl als selbst genutzte Ferienwohnung als auch als attraktive Kapitalanlage zur Vermietung.
Diese Immobilie vereint maritimes Flair, eine hervorragende Lage und eine moderne Ausstattung – ideal für alle, die das Leben an der Nordsee genießen möchten.
















